





Marsa 24 Nieporęt
Pow. użytkowa: 157.86 m²
O INWESTYCJI
Opis projektu

Nowoczesny dom parterowy Premium
Luksusowy dom parterowy o powierzchni 157,86 m² na dużej działce 1018 m², zbudowany w standardzie deweloperskim Premium. Ogrzewanie podłogowe, pompa ciepła ALPHA INOTEC, rekuperacja, kominek oraz pełne ogrodzenie w cenie.

Komfort i funkcjonalność
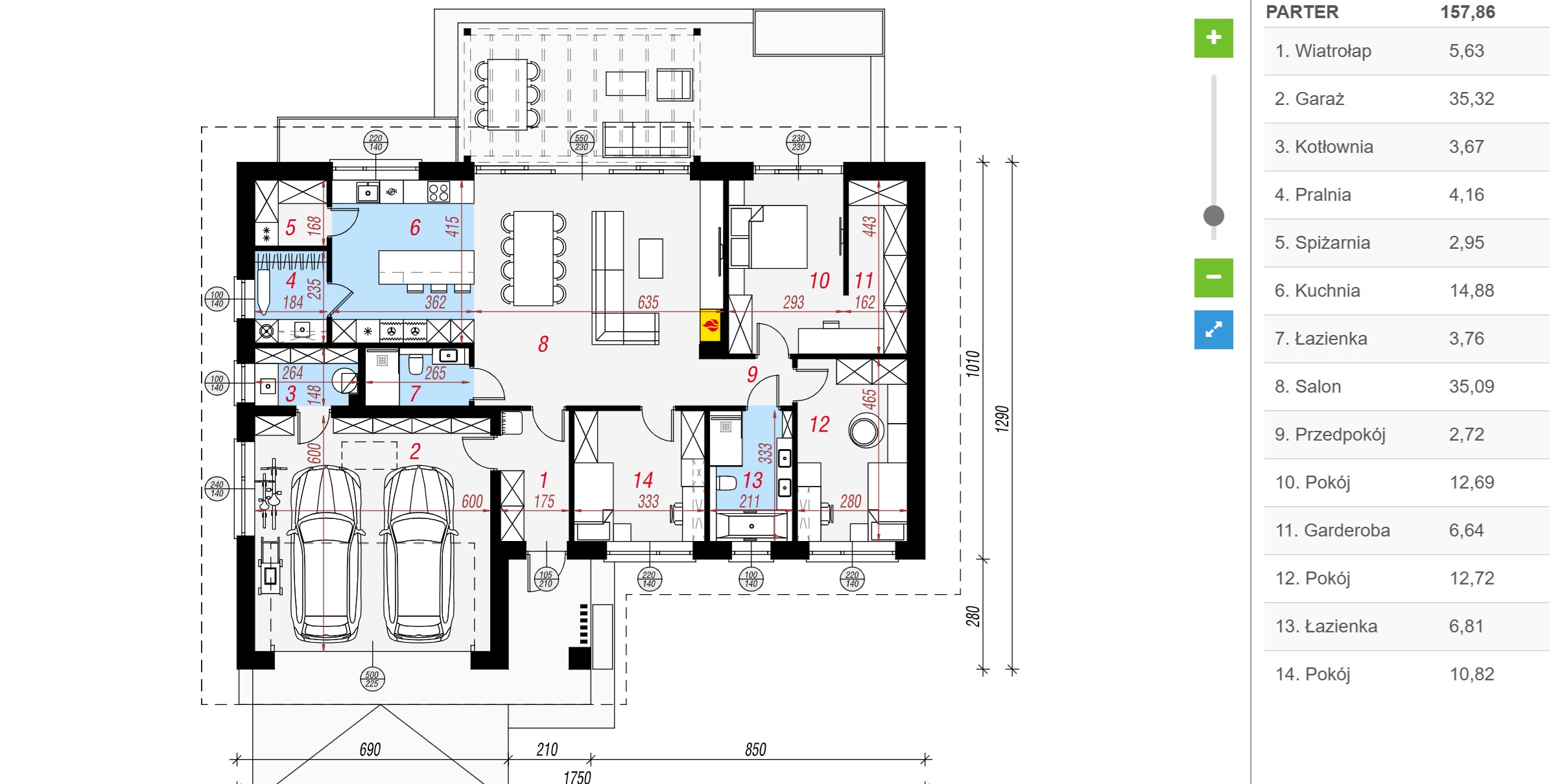
Przemyślany układ pomieszczeń z dużym salonem, kuchnią, spiżarnią, 3 sypialniami, dwiema łazienkami, pralnią i garażem na dwa samochody. Dodatkowo poddasze z możliwością adaptacji.

Bezpieczeństwo i korzyści finansowe
Dom z uregulowanym stanem prawnym, bez obciążeń hipotecznych. Sprzedaż bezpośrednio od dewelopera – 0% prowizji i brak podatku PCC.
Lokalizacja
Dom budujemy w cichej i spokojnej części Nieporętu, przy gminnej ulicy Marsa 24, zaledwie 35 minut od centrum Warszawy.
W najbliższym otoczeniu znajdują się domy jednorodzinne, Jezioro Zegrzyńskie, Kanał Żerański, trasy rowerowe, tereny rekreacyjne w PORCIE PILAWA oraz Puszcza Słupecka!
Szkoły, przedszkola, urzędy, dom kultury, AQUA PARK, centrum handlowe, liczne punkty usługowe, stacja PKP, komunikacja miejska znajduje się w promieniu kilku minut od oferowanego domu.
Dodatkowym atutem jest szybkie połączenie z trasą wylotową przez Marki lub Legionowo w kierunku Warszawy.
Dom jest funkcjonalnie i nowocześnie zaprojektowany, nie brakuje w nim naturalnego światła dzięki dużym przeszkleniom.
Powierzchnia całkowita: 196,68 m2
Powierzchnia użytkowa: 160 m2
- Salon: 35,09 m²
- Kuchnia (otwarta na salon): 14,88 m²
- Spiżarnia: 2,95 m²
- Wiatrołap: 5,63 m²
- Hall: 2,72 m²
- Łazienka z WC i prysznicem: 3,76 m²
- Pralnia: 4,16 m²
- Sypialnia/garderoba: 20 m²
- Pokój 12,72 m²
- Pokój 10,82 m²
- Łazienka: 6,81 m²
- Pomieszczenie techniczne przy garażu 3,67 m²
- Garaż: 35,32 m2 na dwa samochody, wbudowany w bryłę budynku.
Atutem jest możliwości adaptacji poddasza o powierzchni aż 80 m² – to świetna opcja dla rodzin szukających dodatkowej przestrzeni do pracy, nauki lub wypoczynku.
Wysoki Standard wykonania
Dom został wybudowany z najwyższej jakości materiałów z dbałością o każdy szczegół:
- Ławy fundamentowe beton B 30, izolacja pionowa, pozioma ścianek bloczka,
- Ściany z pustaka H+H, ocieplone styropianem grafitowym grubość 20 cm lambda 0,33
- Tynk silikonowy zmywalny - Caparol, trwały na wiele lat.
- Strop – płyta monolit – ocieplenie styropianem 10+10+5 cm, dodatkowo wylana posadzka 5 cm, ścianka kolankowa zaizolowana
- Dach pokryty dachówką płaską renomowanej marki Creaton
- Rynny stalowe w kolorze srebrnym
- Brama garażowa z napędem firmy Wiśniowski do domów energooszczędnych UNITERM
- Drzwi wejściowe markowe z przeszkleniem Martom – ciepły próg
- Okna 7-komorowe o podwyższonej izolacyjności termicznej, profil Rehau do domów energooszczędnych, ciepłe parapety, poszerzenia systemowe, w salonie okno typu HS 5 metrów szerokości,
- Tynki gipsowe bardzo starannie wykonane
- Posadzka betonowa, siatka zbrojeniowa w garażu, dylatacja w większym powierzchniach
- Wymurowany komin systemowy do tradycyjnego kominka, z odpływem skroplin i napowietrzeniem
- Instalacje wodno – kanalizacyjne
- Instalacja ogrzewania podłogowego Wavin, z zagęszczeniem przy oknach,
- Instalacje elektryczne 50 punktów,
- Instalacje alarmowa 12 szt
- Instalacje pod kamery 5 szt
- Instalacja antenowa, kanał w salonie do przeprowadzenia kabli
- Instalacja internetowa w pokojach, dodatkowy router
- Instalacja videodomofonowa z tabletem
- Instalacja Rekuperacji
- Instalacja do zasilenie fotowoltaiki
- Instalacja do ładowarki samochodowej – siła
- Czujnik szamba
- Oświetlenie led, w wejściu plus 7 punktów na elewacji, wyjścia na ogród,
- Podjazd, taras, opaska wokół domu wykonana z kostki Polbruk
Prace budowlane były prowadzone sprawnie w sezonie letnim przez sprawdzone, doświadczone ekipy wykonawcze, co gwarantuje solidność i trwałość domu na wiele lat. Na budowie jesteśmy osobiście każdego dnia, aby dopilnować, aby wszystko było starannie wykonane!
ATUTY nieruchomości:
- Duża działka 1018 m2, media: prąd, woda miejska, Internet, szeroka droga gminna!
- Energooszczędny dom – bardzo dobry wskaźnik zapotrzebowania na energię pierwotną EP, możliwość założenia paneli na dachu, niskie koszty utrzymania budynku.
- Funkcjonalny, przemyślany układ pomieszczeń, nie będzie drogi w wykończeniu
- Możliwość adaptacji 80 m² poddasza
- Duży, wbudowany garaż
- Ogrzewanie podłogowe w całym domu zasilane nowoczesną sprawdzoną POMPĄ CIEPŁA ALPHA INOTEC
- Solidne metalowe MARKOWE ogrodzenie z pełnym osprzętem i słupkiem multimedialnym
- Bezpieczna, zielona i spokojna okolica
- Świetna infrastruktura sportowo-rekreacyjna w pobliżu
- Dobry dojazd do Warszawy
- UREGULOWANY STAN PRAWNY
- Potencjał inwestycyjny – nieruchomość znajduje się w obszarze intensywnie się rozwijającym, na obrzeżach Warszawy, popyt na nieruchomości w tej okolicy nie słabnie ze względu atrakcyjne położenie
ZAPRASZAMY To idealna propozycja dla rodzin poszukujących komfortowego domu z szybkim dostępem do miasta, a także dla osób aktywnych, które chcą mieszkać blisko natury i nowoczesnych obiektów sportowych.
Jako właściciel chętnie udzielę wszelkiej pomocy i praktycznych porad związanych z adaptacją domu do zamieszkania – zarówno w zakresie organizacyjnym, jak i technicznym. Zależy mi, aby nowi mieszkańcy mogli wprowadzić się bez stresu i poczuć się tu naprawdę jak "u siebie".
Zainteresowanych zachęcam poznać okolicę osobiście ANIA i PIOTR
Mamy kilka zrealizowanych domów w okolicy!
| Typ | Pow. użytkowa | Cena brutto | Cena brutto/m² | Status |
|---|---|---|---|---|
| Dom wolnostojący | 157.86 m² | 1 500 000 zł | 9502 zł | Dostępny |
LOKALIZACJA
Położenie inwestycji
W odległości 10 minut
DOKUMENTY
Materiały informacyjne
Pobierz kluczowe dokumenty dotyczące inwestycji. Znajdź wszystkie niezbędne informacje o planach zagospodarowania i szczegółach projektu.
Potrzebujesz dodatkowych informacji? Skontaktuj się z nami
